北区北方モデルハウスオーナー募集【ご成約】
2025.07.8
モデルハウス
モデルハウスオーナー募集!!【ご成約】
岡山市北区北方3丁目1088-3
広い敷地ならでは。
北方で平屋で暮らす生活。
車4台駐車可能。
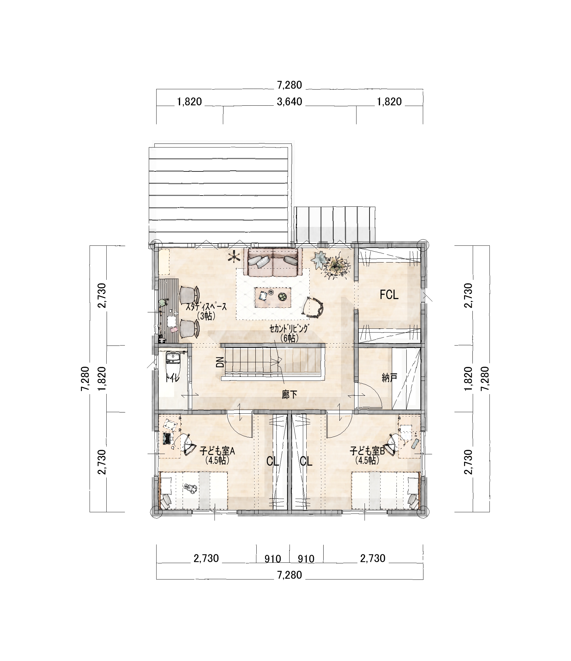
落ちつきあるダイニングは、小上がりでごろ寝スペースも。
フリールームはゲストルームや自宅サロンなど用途はさまざま変更可能。
ネイルサロン、シアタールーム、トレーニングルーム、バイクガレージなど。

■北区北方3丁目1088-3
■御野小・岡北中学校区
パースはイメージです。
【 周辺環境 】
御野小学校・・徒歩9分(700ⅿ)
岡北中学校・・徒歩8分(600ⅿ)
セブンイレブン岡山北方店・・徒歩5分(400ⅿ)
ザグザグ北方店・・・・・・・徒歩5分(400ⅿ)
ラ・ムー岡山中央店・・・・・徒歩8分(600ⅿ)
マルナカ中井町店・・・・・・徒歩12分(900ⅿ)
天満屋ハピータウン岡北店・・徒歩13分(1,000ⅿ)
中国銀行法界院支店・・・・・徒歩9分(650ⅿ)
JR法界院駅・・・・・・・・・徒歩9分(700ⅿ)
半田山植物園・・・・・・・・徒歩10分(750ⅿ)
旭川のさくら並木・・・・・・徒歩10分(800ⅿ)
こどもの森・・・・・・・・・徒歩17分(1,300ⅿ)
岡山県総合グラウンド・・・・徒歩25分(2,000ⅿ)















































